Menu
Un projet réalisé par :Blooma Architecture  Architecte à Marseille

RÉNOVATION COMPLÉTE MAISON MARSEILLE

 Marseille - 13
Blooma Architecture
Accueil Projets RÉNOVATION COMPLÉTE MAISON MARSEILLE

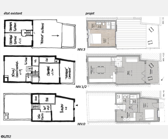
Rénovation et restructuration complète d'une maison à Marseille en loft. Avec ouverture de tous les murs et agrandissement des ouvertures pour amener de la lumière.

RÉNOVATION COMPLÉTE MAISON MARSEILLE

L’opération porte sur la réhabilitation totale d’une maison de ville à Marseille.

L'espace existant, organisé sur demi-niveaux, a été totalement décloisonné, afin de profiter d'une vue traversante dans l'ensemble de la maison.

La distribution actuelle est remaniée, afin de faciliter la circulation d'un niveau à un autre. Les escalier deviennent partie intégrante de l'aménagement de l'ensemble.

Les sols sont traités de façon unitaire, élargissant l'espace du séjour à la terrasse, qui bénéficie d'une vue privilégiée sur les collines et la mer.

  • RÉNOVATION COMPLÉTE MAISON MARSEILLE : image_projet_mini_95299
  • RÉNOVATION COMPLÉTE MAISON MARSEILLE : WEB_GOUD_72dpi_photo detail escalier
  • RÉNOVATION COMPLÉTE MAISON MARSEILLE : WEB_GOUD_chambre etage
  • RÉNOVATION COMPLÉTE MAISON MARSEILLE : WEB_GOUD_chambre invites
  • RÉNOVATION COMPLÉTE MAISON MARSEILLE : WEB_GOUD_escalier chambre
  • RÉNOVATION COMPLÉTE MAISON MARSEILLE : WEB_GOUD_cuisine
  • RÉNOVATION COMPLÉTE MAISON MARSEILLE : WEB_GOUD_sejour
  • RÉNOVATION COMPLÉTE MAISON MARSEILLE : WEB_GOUD_coupe
  • RÉNOVATION COMPLÉTE MAISON MARSEILLE : WEB_GOUD_plans

Trouvez un architecte pour votre projet

Protection de vos données personnelles

Depuis toujours, architectes-france.com ne transfère aucune donnée personnelle à d'autres acteurs que ceux directement concernés par le projet (architectes, architectes d'intérieur...) et qui appartiennent à son réseau. Nos listes ne sont jamais transmises ou vendues à des partenaires extérieurs, même si ceux-ci appartiennent au domaine de la construction.
Toute modification dans ce domaine ne serait effectuée qu'avec votre consentement.

Je consens à ce que mes données personnelles soient collectées pour permettre à architectes-france de transférer votre projet aux architectes. Seul Architectes-france, ses équipes internes et la maitrise d'oeuvre concernée par le projet y ont accès. Aucune transmission de données à des tiers à l'exclusion de ceux décrits ci dessus n'est réalisée.

Mes données téléphoniques seront uniquement utilisées par Architectes-france.com et les architectes de notre réseau dans le cadre de la qualification et du suivi de mon projet.

Les données sont conservées pendant une durée de 18 mois courant à partir des derniers contacts effectifs entre architectes-france et vous ou architectes-france et un membre de la maitrise d'oeuvre en rapport avec ce projet et qui serait en relation avec architectes-france.

Conformément à la loi « informatique et libertés », vous pouvez exercer votre droit d'accès aux données vous concernant et les faire rectifier en contactant : Architectes-france, 23 avenue du Mirail - parc du Mirail - 33370 Artigues-près Bordeaux. Tél. 05.47.74.51.01 - contact@architectes-france.com

Trouvez un architecte pour votre projet

Protection de vos données personnelles

Depuis toujours, architectes-france.com ne transfère aucune donnée personnelle à d'autres acteurs que ceux directement concernés par le projet (architectes, architectes d'intérieur...) et qui appartiennent à son réseau. Nos listes ne sont jamais transmises ou vendues à des partenaires extérieurs, même si ceux-ci appartiennent au domaine de la construction.
Toute modification dans ce domaine ne serait effectuée qu'avec votre consentement.

Je consens à ce que mes données personnelles soient collectées pour permettre à architectes-france de transférer votre projet aux architectes. Seul Architectes-france, ses équipes internes et la maitrise d'oeuvre concernée par le projet y ont accès. Aucune transmission de données à des tiers à l'exclusion de ceux décrits ci dessus n'est réalisée.

Mes données téléphoniques seront uniquement utilisées par Architectes-france.com et les architectes de notre réseau dans le cadre de la qualification et du suivi de mon projet.

Les données sont conservées pendant une durée de 18 mois courant à partir des derniers contacts effectifs entre architectes-france et vous ou architectes-france et un membre de la maitrise d'oeuvre en rapport avec ce projet et qui serait en relation avec architectes-france.

Conformément à la loi « informatique et libertés », vous pouvez exercer votre droit d'accès aux données vous concernant et les faire rectifier en contactant : Architectes-france, 23 avenue du Mirail - parc du Mirail - 33370 Artigues-près Bordeaux. Tél. 05.47.74.51.01 - contact@architectes-france.com