Menu
Un projet réalisé par :Blooma Architecture  Architecte à Paris

REUNION DE DEUX CHAMBRES EN UN STUDIO de 14m²

 Paris - 75
Blooma Architecture
Accueil Projets REUNION DE DEUX CHAMBRES EN UN STUDIO de 14m²

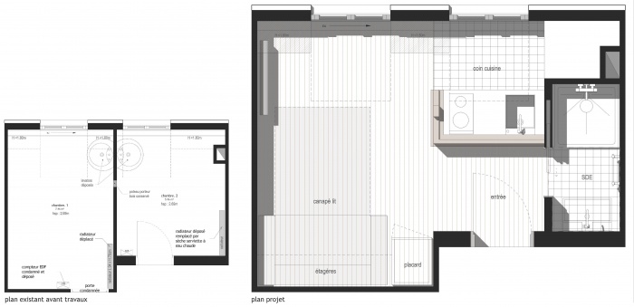
Réhabilitation complète et réunion de deux chambres au dernier étage d'un immeuble dans le 15ème arrondissement de Paris en un studio de 14m². Mission complète : Durée de chantier 6 semaines.

REUNION DE DEUX CHAMBRES EN UN STUDIO de 14m²

Il s'agissait de créer un studio par la réunion de deux chambres de bonnes.

  • REUNION DE DEUX CHAMBRES EN UN STUDIO de 14m² : image_projet_mini_95160

    ETAT EXISTANT AVANT TRAVAUX

  • REUNION DE DEUX CHAMBRES EN UN STUDIO de 14m² : ETAT EXISTANT AVANT TRAVAUX
  • REUNION DE DEUX CHAMBRES EN UN STUDIO de 14m² : SEMAINE 1
  • REUNION DE DEUX CHAMBRES EN UN STUDIO de 14m² : SEMAINE 3
  • REUNION DE DEUX CHAMBRES EN UN STUDIO de 14m² : SEMAINE 4
  • REUNION DE DEUX CHAMBRES EN UN STUDIO de 14m² : SEMAINE 5
  • REUNION DE DEUX CHAMBRES EN UN STUDIO de 14m² : SEMAINE 6
  • REUNION DE DEUX CHAMBRES EN UN STUDIO de 14m² : PLANS
  • REUNION DE DEUX CHAMBRES EN UN STUDIO de 14m² : image_projet_mini_95399
  • REUNION DE DEUX CHAMBRES EN UN STUDIO de 14m² : 02 mobilier niche lit
  • REUNION DE DEUX CHAMBRES EN UN STUDIO de 14m² : 06 CUISINE
  • REUNION DE DEUX CHAMBRES EN UN STUDIO de 14m² : 04 BAR
  • REUNION DE DEUX CHAMBRES EN UN STUDIO de 14m² : 05 BAR

Trouvez un architecte pour votre projet

Protection de vos données personnelles

Depuis toujours, architectes-france.com ne transfère aucune donnée personnelle à d'autres acteurs que ceux directement concernés par le projet (architectes, architectes d'intérieur...) et qui appartiennent à son réseau. Nos listes ne sont jamais transmises ou vendues à des partenaires extérieurs, même si ceux-ci appartiennent au domaine de la construction.
Toute modification dans ce domaine ne serait effectuée qu'avec votre consentement.

Je consens à ce que mes données personnelles soient collectées pour permettre à architectes-france de transférer votre projet aux architectes. Seul Architectes-france, ses équipes internes et la maitrise d'oeuvre concernée par le projet y ont accès. Aucune transmission de données à des tiers à l'exclusion de ceux décrits ci dessus n'est réalisée.

Mes données téléphoniques seront uniquement utilisées par Architectes-france.com et les architectes de notre réseau dans le cadre de la qualification et du suivi de mon projet.

Les données sont conservées pendant une durée de 18 mois courant à partir des derniers contacts effectifs entre architectes-france et vous ou architectes-france et un membre de la maitrise d'oeuvre en rapport avec ce projet et qui serait en relation avec architectes-france.

Conformément à la loi « informatique et libertés », vous pouvez exercer votre droit d'accès aux données vous concernant et les faire rectifier en contactant : Architectes-france, 23 avenue du Mirail - parc du Mirail - 33370 Artigues-près Bordeaux. Tél. 05.47.74.51.01 - contact@architectes-france.com

Trouvez un architecte pour votre projet

Protection de vos données personnelles

Depuis toujours, architectes-france.com ne transfère aucune donnée personnelle à d'autres acteurs que ceux directement concernés par le projet (architectes, architectes d'intérieur...) et qui appartiennent à son réseau. Nos listes ne sont jamais transmises ou vendues à des partenaires extérieurs, même si ceux-ci appartiennent au domaine de la construction.
Toute modification dans ce domaine ne serait effectuée qu'avec votre consentement.

Je consens à ce que mes données personnelles soient collectées pour permettre à architectes-france de transférer votre projet aux architectes. Seul Architectes-france, ses équipes internes et la maitrise d'oeuvre concernée par le projet y ont accès. Aucune transmission de données à des tiers à l'exclusion de ceux décrits ci dessus n'est réalisée.

Mes données téléphoniques seront uniquement utilisées par Architectes-france.com et les architectes de notre réseau dans le cadre de la qualification et du suivi de mon projet.

Les données sont conservées pendant une durée de 18 mois courant à partir des derniers contacts effectifs entre architectes-france et vous ou architectes-france et un membre de la maitrise d'oeuvre en rapport avec ce projet et qui serait en relation avec architectes-france.

Conformément à la loi « informatique et libertés », vous pouvez exercer votre droit d'accès aux données vous concernant et les faire rectifier en contactant : Architectes-france, 23 avenue du Mirail - parc du Mirail - 33370 Artigues-près Bordeaux. Tél. 05.47.74.51.01 - contact@architectes-france.com